Brunavarnir Suðurnesja 2025

 

Nýverið fengu Brunavarnir Suðurnesja krókheysisvatnstank 10.000 l. með úttökum að framan og á palli að aftan. Á tanknum er stigi og mannop.

 

Slökkvilið Borgarbyggðar

 

Hér á eftir er almenn lýsing á þessum krókheysistanki og öðrum þeim gerðum krókheysistanka sem við getum boðið.

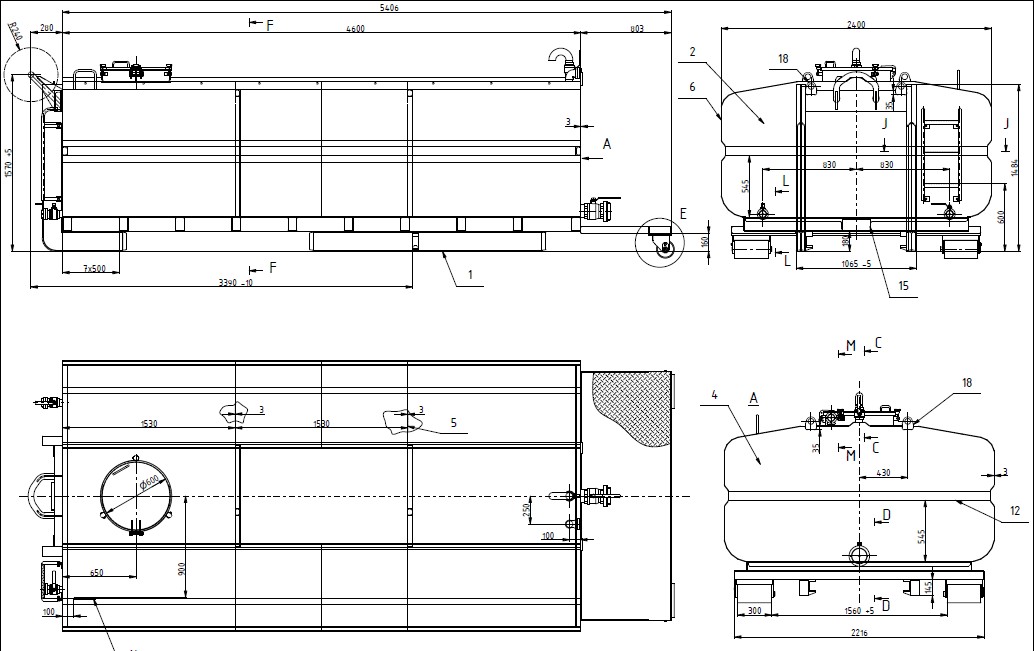
Krókheysisvatnstankur ca.10 m³ / 10.000L Rúmtak: 10.000 lítrar - Mál LxBxH: 5400x2400x1000 mm (tankur 4600mm, pallur 800mm).- Efnisflokkur erS235 ( St-37). DIN 30722-1 ( Krókarhæð 1570mm )

 

 

Krókheysistankur

Gólfplata er úr 4 mm stáli og veggir úr 3 mm. stáli. Styrktarbitar neðst á tank. Hægt er að smyrja hjól auðveldlega. Loftræsting með mannopi/inngangi (600mm.) og að ofan með loftröri með loka. C Storz tengi með loki að ofanverðu. Að aftan A Storz tengi með loki og kúluloka. Auka C Storz tengi með kúluventil framan á framendavegg neðst vinstra megin og hægra megin.

 

Krókheysistankur

Epoxý málning að innan 50 míkron. Að utan grunnað 40 míkron og málað. Að innan eru tvö skilrúm. Stigi á endavegg hægra megin. Tankur er heilsoðinn, fituhreinsaður, sandblásinn, grunnaður að innan með epoxý málningu 50 μm og að utan grunnað með alkýð grunnmálningu 40 μm og málað með alkýð plastmálningu 40 μm í RAL lit eftir óskum.

 

Vatstankur Vatnstankur

 

Hér má sjá myndir af öðrum gerðum tanka sem í boði eru.

Afhendingartími:er um 8-10 vikur Þær stærðir sem eru fáanlegar eru frá 5.000 til 50.000 lítra.